◆ 該機是我廠與化工部沈陽化工研究院,在消化和吸收國外的先進設備和技術的基礎上,開發的用來干燥膏粘狀, 濾餅狀和、熱敏性物料的新型干燥設備。本廠設有實驗樣機,可為用戶進行各種物料干燥實驗,提供數據和協助選型。
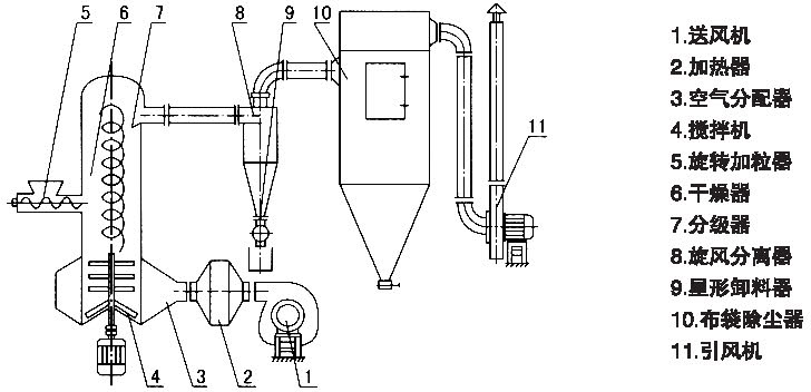
◆ 熱空氣切線進入干燥器底部,在攪拌器帶動下形成強有力的旋轉風場。膏狀物料由螺旋加料器進入干燥器內,在高速旋轉攪拌槳的強烈作用下,物料受撞擊、磨擦及剪切的作用下得到分散,塊狀物料迅速粉碎,與熱空氣充分接觸、受熱、干燥。脫水后的干物料隨熱氣流上升,分級環將大顆粒截留,小顆粒從環中心排出干燥器外,由旋風分離器和除塵器回收,未干透或大塊物料受離心力作用甩向器壁,重新落到底部被粉碎干燥。
![]() |
![]() |
| 閃蒸干燥機主塔 | 旋風除塵器 |
![]() |
![]() |
| 布袋除塵器 | 輸送加料裝置 |
◆ 旋流、流化、噴動及粉碎分級技術的有機結合。
◆ 設備緊湊,體積小,生產效率高,連續生產,實現了"小設備,大生產"。
◆ 干燥強度大,能耗低,熱效率可達70%以上。
◆ 物料停留時間短,成品質量好,可用于熱敏性物料干燥。
◆ 負壓或微負壓操作,密閉性好,效率高,消除環境污染。

[上一個: ZRFG系列正負兩級氣流干燥機 ]
[下一個: ZRLY系列燃油熱風爐 ]
電話:0523-89103888
傳真:0523-89103899
網址:www.gaoxiaojiaocai.com
郵箱:zr@jszrgz.com
地址:江蘇省靖江市經濟開發區